+ 711 Tusculum
PROGRAM
The program called for the design of a 3,000 SF house with a relatively conventional list of rooms and spaces. The client's love of modern design and technology as well as a respect and appreciation of neighboring residences in the Tudor style, instigated a modern interpretation.SITE
A wooded, sloping site located in a neighborhood of semi-secluded homes and directly adjacent to a park entrance.
SOLUTION
A modern spatial relationship of openness was established amongst the public living spaces on the main living level, and were organized to maximize views of the surrounding wooded and park areas. A stainless steel and glass staircase leading to the second floor reinforces spatial openness, permits penetration of natural light, and expresses the client's appreciation of modern design.Familiar massing forms, geometries and exterior materials of the tudor style respect historical homes in the vicinity. The strong vertical chimney rising from its sloped stone base, visually and conceptually anchors the building into the landscape.
+ Modern/Green
PROGRAM
The program called for the design of an approximately 2,600 SF house (including a partially-finished lower level) for speculative sale by a small local developer, to Gold level certification in the United States Green Building Council's (USGBC) LEED for Homes sustainable design rating system. The developer desired a modern design aesthetic, and to respect the neighboring residences. A modern spatial relationship of openness was established amongst the public living spaces on the main living level, and were organized to maximize views. An open steel staircase leading to the second floor reinforces spatial openness and permits penetration of natural light.
SITE
A narrow, sloping site located in an older, "walkable" suburban neighborhood on a cul-de-sac, conveniently located near shopping, grocries stores, entertainment, and public transportation. The site allowed for a generous finished lower level and decks to overlook the sloping rear yard. Windows were strategically located to maintain privacy and optimize views, while admitting abundant daylight.
SOLUTION
A mixture of natural-finished vertical wood siding, horizontal metal cladding and painted horizontal wood siding envelope the building massing to create a modern, dynamic design that respects the detailing of neighboring residences. A high-performance envelope, high-efficiency HVAC units, and water-saving plumbing fixtures were implemented to limit the usage of the precious natural resources of fuel energy and water. Indoor environmental pollutants are minimized through high-performance filtration systems and carefully selected interior finish materials.The main level living spaces open to a private, elevated deck and joins with views from other spaces at the rear of the residence, to overlook a sloping rear yard with good privacy and to create a unique experience.

+ Wine Cellar
PROGRAM
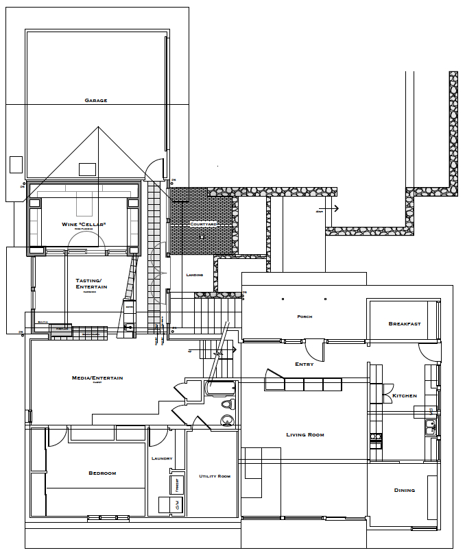
The program called for the design of a wine cellar and adjacent tasting room area for a client that collects wine and entertains frequently. Connectivity to spaces within the existing residence and the outdoors was desired.
SITE
A split-level, mid-century Modern residence with detached garage.SOLUTION
The space between the existing residence and the detached garage was infilled with a sunken tasting area and wine "cellar". A portion of the existing exterior wall of the residence opens to these new spaces, which lead to an intimate courtyard creating a spacious, yet intimate entertainment area. The wine is stored in a stone "cave" while at the same time, on display behind glass. A dedicated thermal control system, cork flooring, and custom storage racks complete the wine cellar.

The tasting area utilizes a fireplace and sunken floor plane to enhance the intimacy level, and create subtle separation from the adjacent Family Room.
+ 911 Race Street
*Recipient of the 2001 Preservation Award from The Cincinnati Preservation Association.
PROGRAM
Adaptive re-use of former Model-A Ford automobile factory into four loft-style apartments with interior parking garage.SITE
A four-story building abandoned for over twenty years, originally designed as an automobile factory and showroom located in the heart of downtown Cincinnati, Ohio.
SOLUTION
Coming at the forefront of the return of downtown living to Cincinnati, four condominium units were created on the upper three floors of this historic building over a ground level interior, parking garage. Loft units of 2,940 SF each are located on the third and fourth floors with two smaller units sharing the same footprint on the second floor. Private access to the units via an elevator creates a direct link to the interior parking below.The industrial heritage of the existing building allows the exposed brick walls and concrete floor/ceiling structure to act as the backdrop for modern living. Open, connected spaces are arranged throughout to maximize daylighting and views. The urban living experience is extended to the exterior where new balconies executed in painted steel continue the industrial vocabulary.
+ Mr. Fish
PROGRAM
The program called for the renovation and expansion of an existing kitchen for a family.
SOLUTION
A relatively small addition to an existing single-family residence provided the impetus for a large, warm, sun-filled kitchen and family gathering space. Dynamic forms, bright colors and modern design elements make for an inviting and invigorating place to cook, chat and eat. Inspiration for the island design was drawn from the owner's artwork.
+ Paradise
PROGRAM
An extensive exterior entertainment area including patio, fire-pit, fountain, swimming pool, and two-car detached garage for a single-family residence in Cincinnati, Ohio.
SOLUTION
The scheme utilizes multiple gathering areas that offer different socializing, sunning, dining, and relaxing experiences, organized at varying levels around the swimming pool. A fire-pit, fountain, extensive landscaping and grilling area enhance this entertainment paradise.
+ Gilman
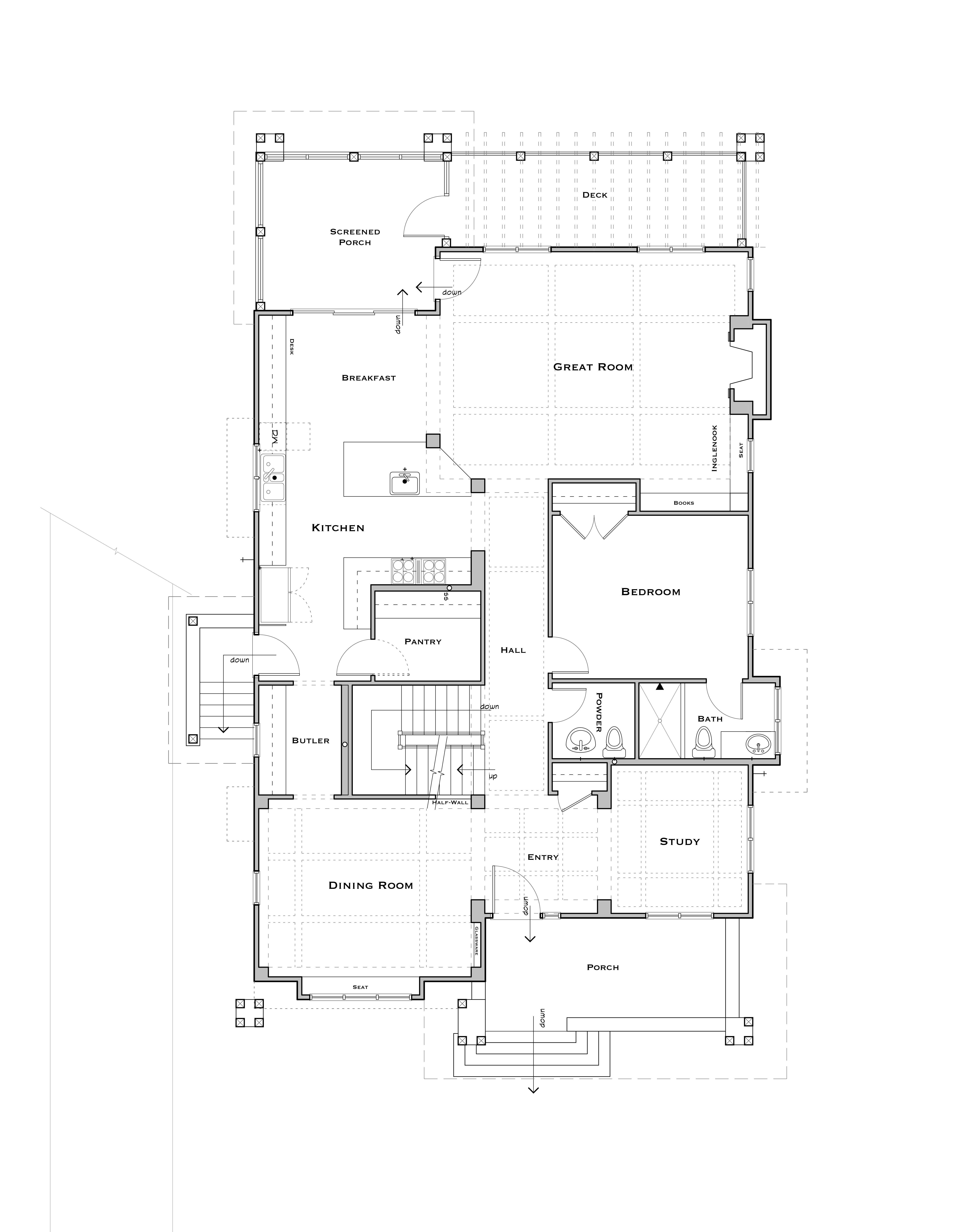
PROGRAM
A Family room, sunroom and deck addition to a large three-story Tudor residence in the Mt. Lookout area of Cincinnati, Ohio. Interior renovations included a new kitchen open to the new Family Room.
SOLUTION
The family room is a new, dominant exterior form at the rear, defining a tall space with second story spaces open to it below, and stands above a new basement level garage. The rear wall is predominantly glazed overlooking a deck and the wooded, rear yard beyond. The strong chimney form organizes the massing and the spatial arrangement of the Living Room.
A smaller massing addition with a "Dutch hip" dormer complements the existing residence and creates a sun-filled space, enhancing the path from the casual family room to the existing formal living room. Complementary materials and detailing respect the existing residence's exterior.
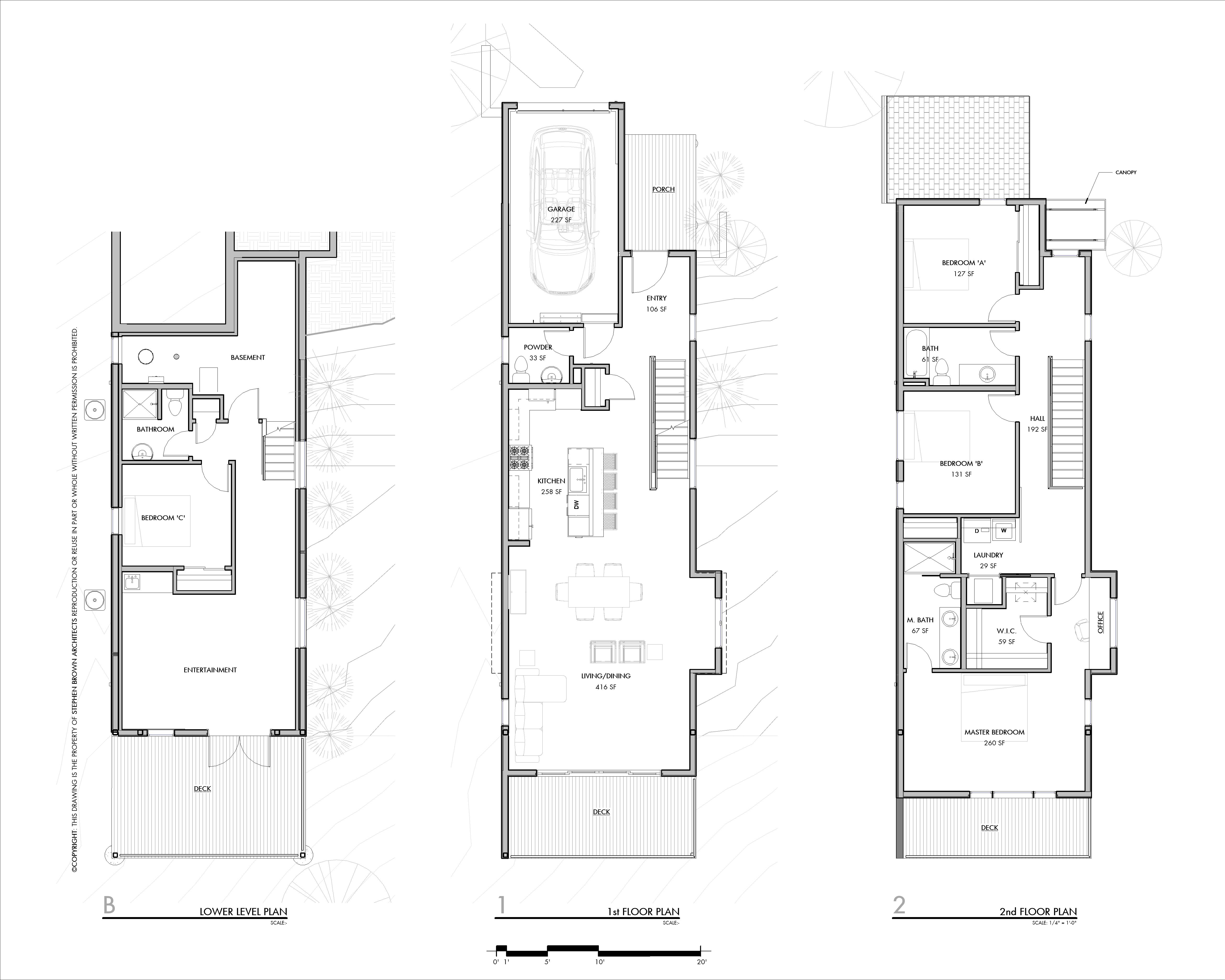
+ Millard
PROJECT DESCRIPTION
Collaboration with Jeffrey Hunter/architect (Fort Mill, S.C.) on a new two-story, single-family for a mutual friend in Charlotte, North Carolina. Four bedrooms located on the second floor are situated over a generous first floor configuration including an open kitchen/living area, formal dining space, office, and guest bedroom.
Second Floor Plan + First Floor Plan
The Craftsman-inspired design is evident in form, materials, and exterior and interior detailing. The basement level garage located at the rear presents a more pedestrian-friendly apearance to the neighborhood.
+ Elfinwoods
PROGRAM
Reclaim and revitalize an abandoned homestead/farm in Asheville, North Carolina to create an artist's retreat, children's petting farm, and weekend home for two artists.
SOLUTION
A large, simple garage structure was converted into living quarters and artist's studio in the initial phase of this ambitious project. Collaboration with a college friend (Jeffrey Hunter/architect in Charlotte, N.C.) and the two artisan/owners on this unique place of whimsy.
+ A Natural House
PROGRAM
A substantial addition/renovation of a typical 40-year-old suburban ranch tract house. New spaces include a master bedroom suite, art gallery, library and entry. An enlarged casual living area and a re-assignment of other spaces were desired. The clients sought implementation of passive and active solar energy systems as well as a more sustainable lifestyle.
SITE
A six-acre, natural retreat located in a sea of typical suburban sprawl of diverse architectural character. The site is virtually completely sheltered on all sides, with wooded areas and an existing pond as a visual 'center' and focus.
SOLUTION
A balance of technology and organic form is expressed through the eastern cultural concepts of 'yin-yang' and 'wabi-sabi'. This balance is extended to other issues of public/private, dark/light, open/closed, new/old, etc. within the scheme. An organic geometry of softer, feminine forms were implemented to establish balance, to embrace the site, views and natural elements, and thereby break out of the standard arrangement of box-like rooms and forms. Natural materials of stone and wood soften the brick walls of the existing house, and are complemented with expansive and strategic use of glass for increased natural light and views to the site, creating an intimacy with nature not found in standard 'builder construction'. Solar energy collector panels are integrated into the copper roofing and are combined with passive design methods to further tie the house to the earth.
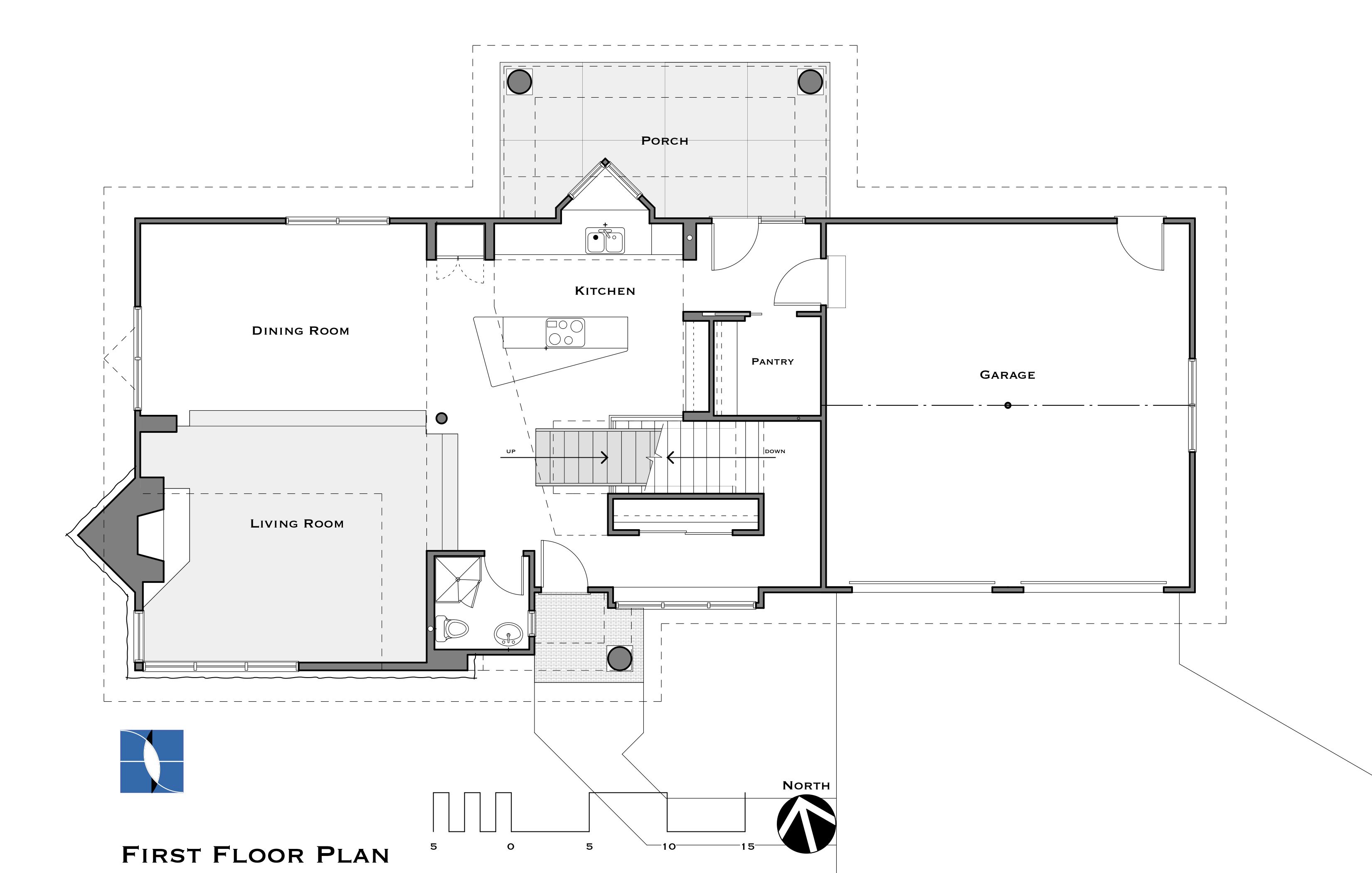
+ Casablanca
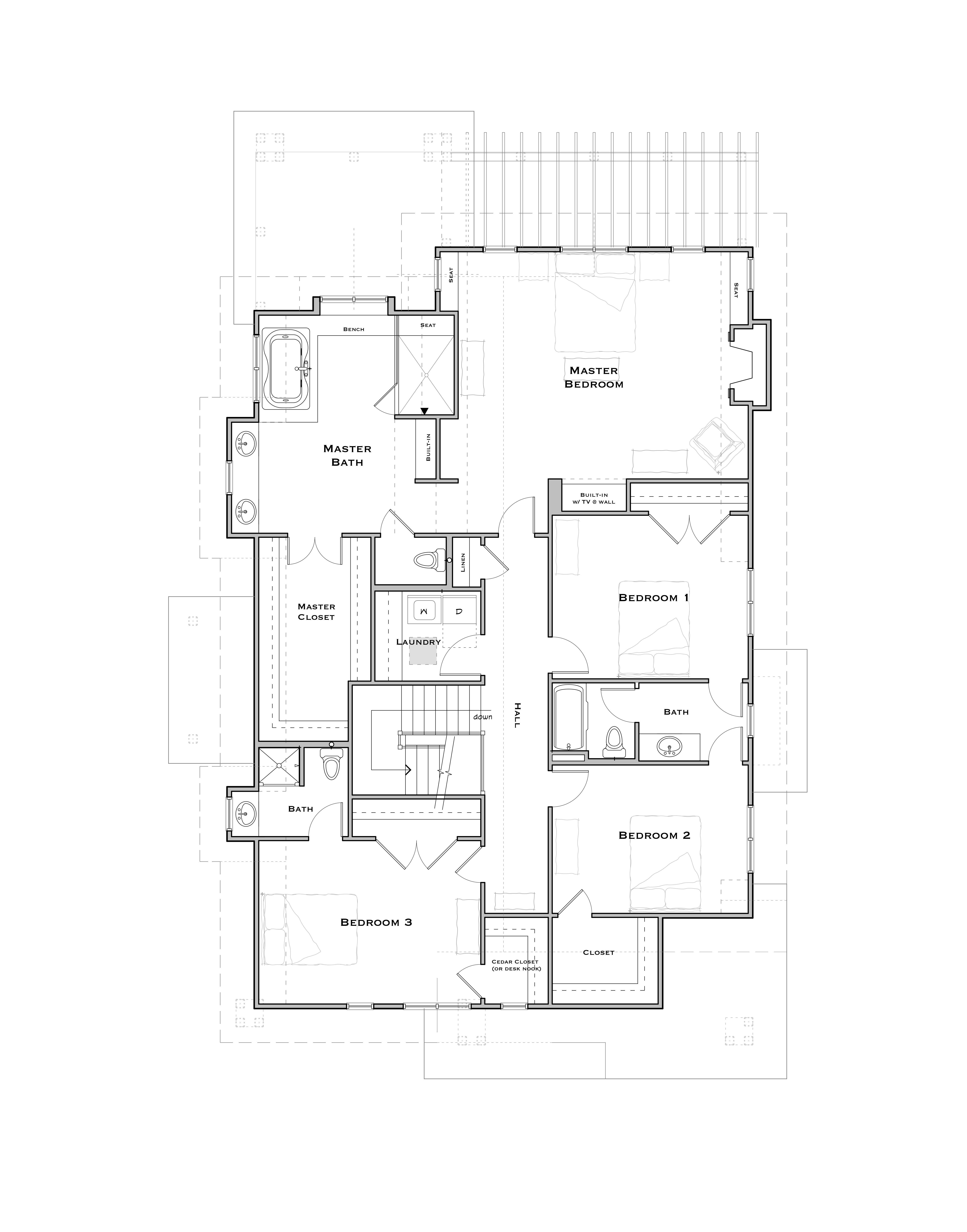
PROGRAM
A traditional two-story residence, with walk-out basement for a family of four located in Indian Hill, Ohio.
SOLUTION
The 2,932 SF first floor is comprised of large, informal, open living spaces including a generous screened porch and 4-car garage. A generous walkout basement contains a gameroom, bar, and guest quarters. Five bedrooms on the second floor include a children's study, and the master suite balcony commands a view of the surrounding forest.